Youtube videók
Leírás és Paraméterek
DEL543006D termék tulajdonságai
Termék adatok
| Rendszer típusa | DELABIE TEMPOMATIC 4 automata piszoár öblítő |
| Termék jellege | piszoár szerelőkeret |
| Garancia | 10 év telephelyi garancia, mely a gyártási hibákra vonatkozik, a kopó alkatrészekre, illetve a helytelen üzemeltetésből fakadó hibákra nem érvényes |
| Felhasználási terület | Sportlétesítmények
Oktatási intézmények Uszodák Élelmiszeripar Közösségi vizesblokkok, közületi mosdók Intézmények Vendéglátó egységek Egészségügy Irodák Üzemi higiénia Kifejezetten nagy forgalmú közösségi helyiségekbe |
Anyaghasználat
| Acél minősége | szénacél |
| Anyag | acél
műanyag |
| Borítás | fekete
kék |
Működési jellemzők
| Működtetés | automata (szenzoros, infrás) - az érintésmentes használat maximális higiéniát biztosít |
| Üzemi nyomástartomány | ajánlott nyomás 3 bar - az átfolyási értékek minden esetben 3 bar dinamikus nyomás esetén érvényesek, a rendeltetésszerű használathoz pedig 1,5 - 5 bar közötti nyomás szükséges |
| Tápellátás | elemes
2db CR123 típusú lítium elem |
Kialakítás
| Extra | Stopcock - beépített elzárócsap, mely lehetővé teszi az öblítőszelep egyedi elzárást, illetve szabályozza a vízátfolyás mértékét
vízzáró dobozos kialakítás - a vízmentesen záró szerelődoboz lényege, hogy szivárgás esetén kivezeti a vizet a BOX-ból az előlap alján lévő kis nyíláson át, ezáltal megóvja a falat az elázástól |
| Kialakítás | vandálbiztos
95 - 280 mm rögzítési pont |
| Kifolyás | 1/2"-os flexibilis piszoár öblítő bekötő csővel |
| Tartozékok | vízmentesen záró szerelődoboz
a termék tartalmazza a piszoár öblítő bekötőcsövet fali rögzítők piszoár öblítőcső |
Szerelési adatok
| Vízbekötés | 1/2 coll |
| Rögzítés | beépített
rejtett csavarozással lopásbiztos rögzítés padlóhoz és hátsó falhoz rögzítendő 100 - 280 mm szélesség között állítható rögzítési távolság |
| Vízelvezetés | D=50 mm |
| Karbantartás | A szelepek belső alkatrészeinek tisztítása évente legalább egyszer szükséges. Az esetleges szennyeződések és a vízkő eltávolításával megóvhatók a kopóalkatrészek (pl.: tömítőgyűrűk).
Karbantartáshoz és szereléshez könnyű hozzáférhetőséget biztosít a szerelődoboz. A biztonsági csavarokkal rögzített előlap levételével hozzáférhetővé válnak a szerelődobozon belül az elzárócsap, az átfolyásszabályzó és az öblítőmechanizmus részei. |
| Szerelés | előreszerelve csomagolt
legalább 90 mm vastag, kizárólag teherhordó falhoz rögzíthető a teherhordó fal és a szerelőkeret közötti távolság 160 mm és 220 mm között állítható a beburkolt előtétfal vastagsága 13 - 110 mm között lehet a beüzemelést megelőzően kötelezően elvégzendő a bejövő vízcsövek teljes körű átöblítése (PURGE) a gyártási, vágási, hegesztési és szerelési munkák során képződő lebegő szennyeződés eltávolításának érdekében - ennek elmaradása esetén a szelepbe kerül az építési törmelék, ami károsíthatja a terméket és garanciavesztéssel jár A termék két részből áll, melyeket külön cikkszámokon szükséges megrendelni. --- kit 1/2: a szerelőkeret a vízmentesen záró szerelődobozzal, és a BOX-ban lévő szerelvények egy része, ezeket a burkolás előtt szükséges beépíteni. ---///--- kit 2/2: az előlap és a működtető mechanizmus előlapi része, illetve azok rögzítőelemei, melyeket a burkolás után szükséges felszerelni a BOX-ra |
Szabványok, engedélyek
| Szabvány | NF D12-208
2014/30/EU - Elektromágneses kompatibilitás 2014/35/EU - Alacsony feszültség irányelv EN 55014-1:2016 - Harmonizált szabvány EN 61000-3-2:2014 - Harmonizált szabvány EN 61000-3-3:2013 - Harmonizált szabvány EN 55014-2:2015 - Harmonizált szabvány EN 60335-1:2012+A11:2014 - Harmonizált szabvány |
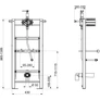
Dimenziók, méretek
| Mélység | 160-220 mm faltól való távolság |
| Méretek (SZxMAxMÉ) | 430.00 x 1,385.00 x 220.00 mm |
| Tömeg | 11.07 kg |
| Magasság | állítható magasság
a szerelőkeret magassága +- 200 mm-t állítható, azaz 400 mm-nyi tartományban változtatható 985 - 1385 mm |
| Szélesség | 430 mm |
Logisztikai részletek
| Kiszerelés | 1 db |
| Származási hely | Franciaország - FR |
| VTSZ | 84819000 |
Kérdése van a termékkel kapcsolatban?
Vélemények
Erről a termékről még nem érkezett vélemény.
Hasonló termékek
Cikkszám: DEL543000
DELABIE TEMPOFIX 3 piszoár szerelőkeret vízzáró BOX-szal és transzformátorral TEMPOMATIC 4 automata piszoár öblítőszelephez, 35mm gumiharangos bekötésű piszoárokhoz, hálózati, kit 1/2
225.070 Ft + ÁFA
(285.839 Ft)
Cikkszám: DEL543000D
DELABIE TEMPOFIX 3 piszoár szerelőkeret vízzáró BOX-szal és transzformátorral TEMPOMATIC 4 automata piszoár öblítőszelephez, 1/2" flexibilis cső bekötésű öblítőfejes piszoárokhoz, hálózati, kit 1/2
225.070 Ft + ÁFA
(285.839 Ft)
Cikkszám: DEL543006
DELABIE TEMPOFIX 3 piszoár szerelőkeret vízzáró BOX-szal és transzformátorral TEMPOMATIC 4 automata piszoár öblítőszelephez, 35mm gumiharangos bekötésű piszoárokhoz, elemes, kit 1/2
225.070 Ft + ÁFA
(285.839 Ft)
Cikkszám: DEL428200
DELABIE TEMPOMATIC infra piszoár öblítőszelep szervizfolyosós szereléshez, max 225mm falig, hálózati
226.080 Ft + ÁFA
(287.122 Ft)